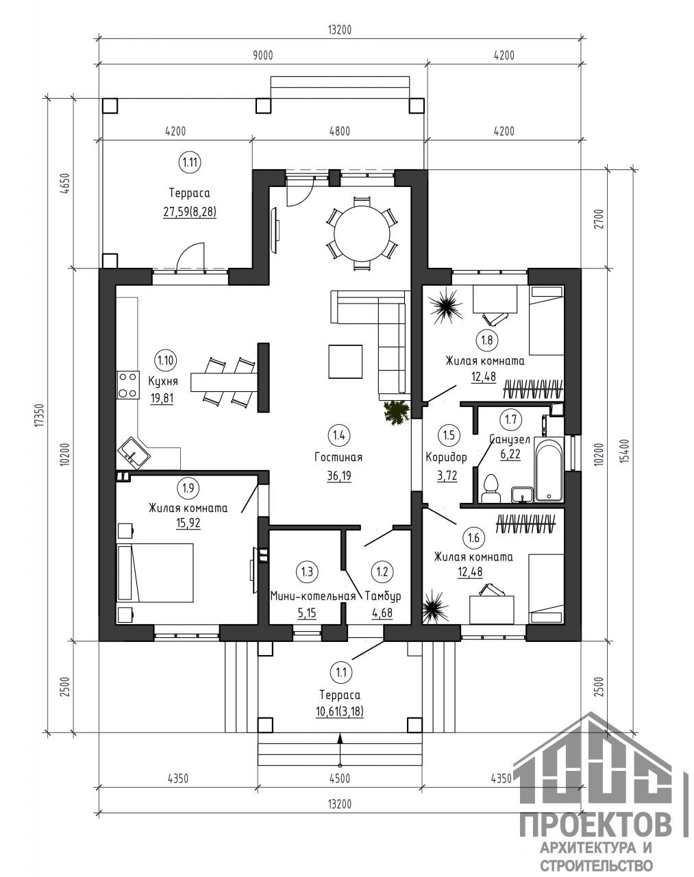
Проект одноэтажного дома из газосиликатных блоков площадью 128.11 м2. В проект включены 3 жилые комнаты, просторная гостиная, совмещенная с кухней, санузел и 2 уютные террасы.
Фундамент – свайно-ростверковый
Материал стен – блоки газосиликатные
Перекрытия – по деревянным балкам
Покрытие кровли – металлочерепица
Фундамент
Свайно-ростверковый с черновой стяжкой
Терраса-черновая стяжка
Крыльца
Стены
Газосиликатные блоки. Наружные стены 400 мм + утепление фасада мин.ватой - 50мм Несущие внутренние стены - 300 мм Перегородки - 120 мм