Проект двухэтажного жилого дома запроектирован общей площадью 158,19м2. Дом в современном стиле с комбинированной облицовкой и односкатной крышей.
В нашей стране при строительстве коттеджей в основном предпочитают двускатные конструкции, а односкатным отводят роль для крыш хозяйственных построек. На наш взгляд данный проект двухэтажного жилого дома показывает на сколько интересным и красивым может быть дом с односкатной крышей. Это хорошая попытка выделить свой дом среди серых и обычных жилищ.
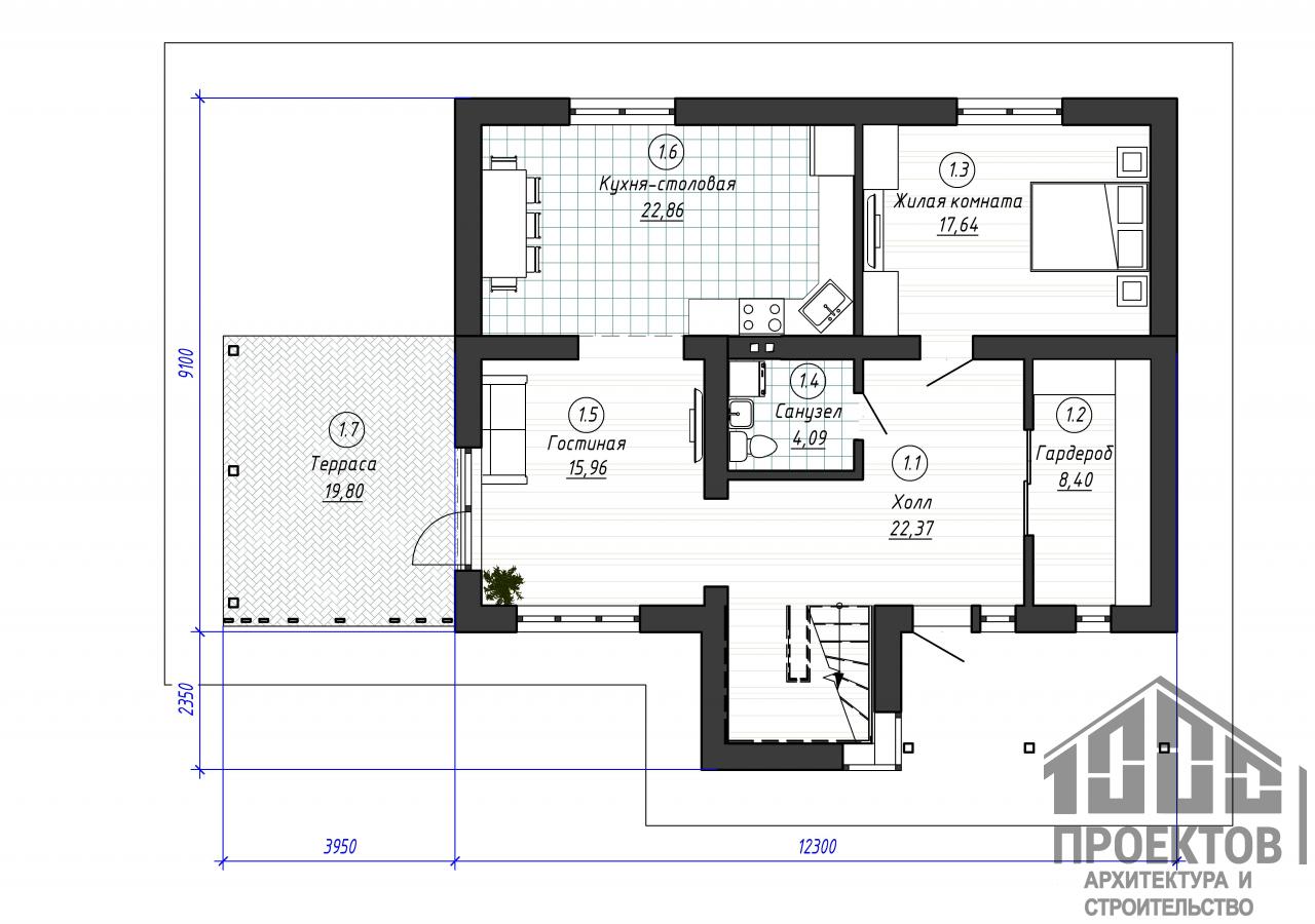
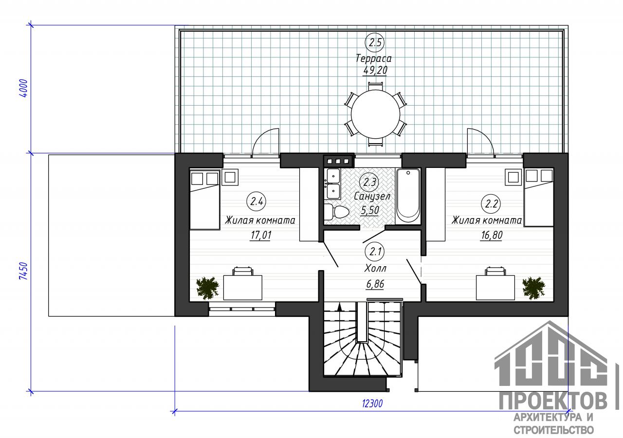
Жилая площадь в данном проекте двухэтажного жилого дома составляет 67,41 м2. В нее входит 3 жилые комнаты и небольшая гостиная с выходом на террасу. На втором этаже размещается 2 жилые просторные спальни, каждая из которых имеет выход на большую террасу. Летом там можно разместить гамак и наслаждаться отдыхом в полной мере, слушая звуки природы.
Проектом не предусмотрена котельная, но и это не проблема. Наши проектировщики могут внести любые корректировки и сделать наиболее комфортный для Вас вариант.
Проектом предусмотрены следующие строительные конструкции (в ходе проектирования их можно заменить):
фундамент – ленточный монолитный;
материал стен - блоки газосиликатные или керамзитобетонные;
межэтажное перекрытие - монолитное;
кровля – металлочерепица по деревянным стропилам.
Архитектурные(эскизными) решения - раздел проектной документации, в котором изложено авторское видение архитектурного объекта. Комплект чертежей Эскизного решения не является основанием для строительства дома. АРХИТЕКТУРНЫЙ ПРОЕКТ необходим для получения разрешения на строительные работы в местных органах архитектуры, а также в дальнейшем для разработки РАБОЧЕГО И ИНЖЕНЕРНОГО ПРОЕКТОВ, по чертежам которых непосредственно и осуществляется строительство дома!