Характеристики проекта:
Получить консультацию
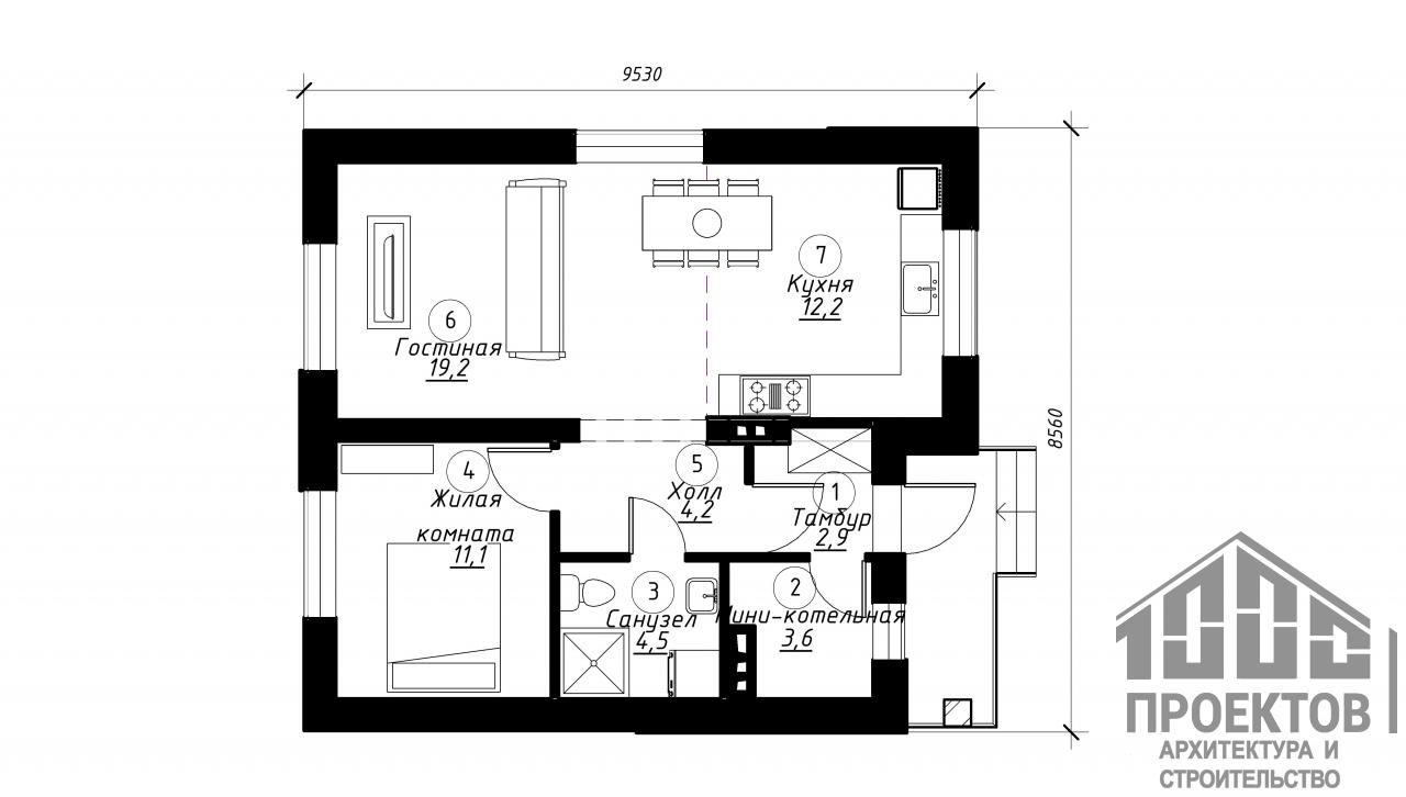
План 1-го этажа
Проект одноэтажного дома из газосиликатных блоков площадью 57,7м2. В проект включены жилая комната, гостиная, совмещенная с кухней и санузел.
Состав эскизного проекта:
Или напишите нам