Компактный дом с мансардным этажом. Крыша формирует образ дома снаружи и увеличивает пространство мансарды в интерьере.
Общая площадь дома 84,75 кв.м. Жилая площадь – 44,4кв.м.
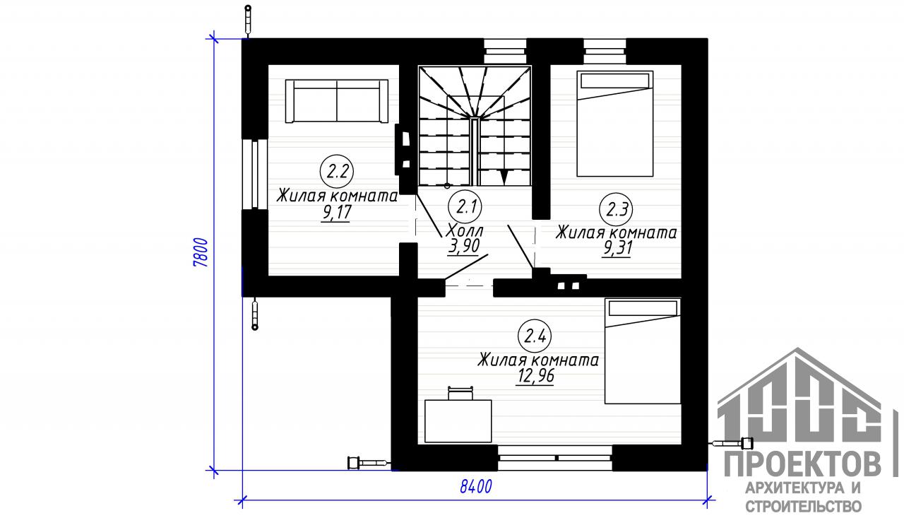
На первом этаже располагается кухня, общая комната, мини-котельная, санузел и тамбур. На втором – три жилых комнаты. Большая кухня порадует любителей домашних посиделок, а изолированная от общих помещений мансарда создаст неповторимый уют и комфорт для вашего проживания.
Фундамент – свайно-ростверковый
Материал стен – блоки газосиликатные
Перекрытия – монолитное
Покрытие кровли – металлочерепица
Фундамент
Свайно-ростверковый с черновой стяжкой
Терраса-черновая стяжка
Крыльца
Стены
Газосиликатные блоки Наружные стены 400 мм + утепление фасада мин.ватой - 50мм Несущие внутренние стены - 300 мм Перегородки - 120 мм