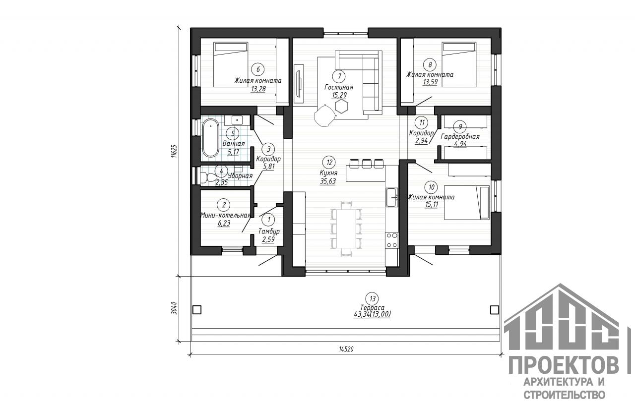
Проект одноэтажного дома из газосиликатных блоков площадью 165,93 м2. В проект включены 3 жилые комнаты, просторная гостиная, совмещенная с кухней, раздельный санузел, гардероб и уютная терраса.
Фундамент – свайно-ростверковый
Материал стен – блоки газосиликатные
Покрытие кровли – мембрана для плоской кровли
Фундамент
Свайно-ростверковый с черновой стяжкой
Терраса-черновая стяжка
Крыльца
Стены
Газосиликатные блоки. Наружные стены 400 мм + утепление фасада мин.ватой - 50мм. Несущие внутренние стены - 300 мм. Перегородки - 120 мм.