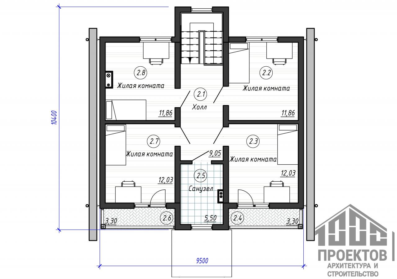
Проект каркасного жилого дома с очень удобной и вместительной планировкой. Общая площадь жилого дома составляет всего 129,94 м2 и включает в себя целых 5 спален и гостиную. Проект данного мансардного жилого дома будет находкой для многодетной семьи. В нем нет ничего лишнего и при этом имеются все необходимые для жизни и удобства помещения: жилые комнаты достаточно вместительные, около 12 м2 каждая, этого достаточно для удобного размещения мебели; в два больших санузла с легкостью поместится вся необходимая сантехника; просторные и освещенные холлы безусловно являются положительной стороной проекта; мини-котельная имеет вход из дома и с улицы (если в проекте будет заложен твердотопливный котел, это поможет избежать лишней грязи в доме). Отделка, комбинированная из имитации бруса и сайдинга под кирпич, придают некую изюминку весьма простому, но очень уютному мансардному жилому дому.
Проектом предусмотрены следующие строительные конструкции:
Фундамент – свайно-винтовой;
Материал стен – «каркасного типа», с обшивкой «имитация бруса» и «сайдингом под кирпич»;
Перекрытия – по деревянным балкам;
Покрытие кровли – металлочерепица;
Высота 1-го этажа – 2,5м;
Высота мансардного этажа – мин. - 1,6м; макс. - 2,5м;
Архитектурные(эскизными) решения - раздел проектной документации, в котором изложено авторское видение архитектурного объекта. Комплект чертежей Эскизного решения не является основанием для строительства дома. АРХИТЕКТУРНЫЙ ПРОЕКТ необходим для получения разрешения на строительные работы в местных органах архитектуры, а также в дальнейшем для разработки РАБОЧЕГО И ИНЖЕНЕРНОГО ПРОЕКТОВ, по чертежам которых непосредственно и осуществляется строительство дома!