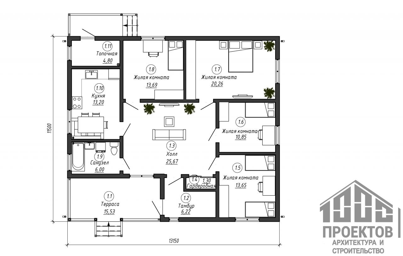
Одноэтажный жилой дом общей площадью 108,14 м2, в состав которой входит 84,12 м2 жилой площади. В нее включено 4 спальни и гостиная, которая еще выполняет и функцию прихожей. Таким образом удается сэкономить полезную площадь жилого дома. Для того что бы избежать ненужных шкафов и вешалок, которые будут только загромождать помешение, в гостиной предусмотрен гардероб. И даже несмотря на то что она является проходной комнатой, в ней есть место для удобного дивана и телевизора. Вход в топочную предусмотрен со двора, при необходимости можно перенести его в кухню. Этот жилой дом будет хорошим вариантом для многодетной семьи.
Фундамент – сваи винтовые
Материал стен - "каркасного типа"
Перекрытия – по деревянным балкам
Кровля – металлическая черепица
Архитектурные(эскизными) решения - раздел проектной документации, в котором изложено авторское видение архитектурного объекта. Комплект чертежей Эскизного решения не является основанием для строительства дома. АРХИТЕКТУРНЫЙ ПРОЕКТ необходим для получения разрешения на строительные работы в местных органах архитектуры, а также в дальнейшем для разработки РАБОЧЕГО И ИНЖЕНЕРНОГО ПРОЕКТОВ, по чертежам которых непосредственно и осуществляется строительство дома!