info@1000proektov.by +375 29 187-69-96

Проект деревянного дома 1034

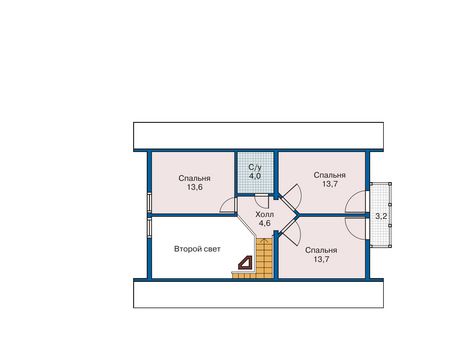
Характеристики проекта:

Площадь(м²): 153.3
Материал стен: дерево
Количество жилых этажей: 1+мансарда
Эскизный проект
550 руб.
Строительный проект
1600 руб.

Получить консультацию