info@1000proektov.by +375 29 187-69-96

Проект деревянного дома 1559

Характеристики проекта:

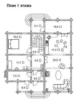
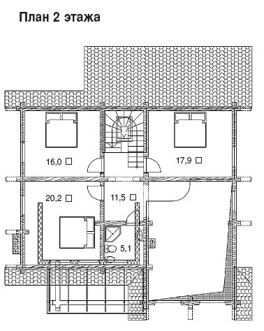
Площадь(м²): 198.5
Материал стен: дерево
Количество жилых этажей: 1+мансарда
Эскизный проект
550 руб.
Строительный проект
1600 руб.

Получить консультацию