info@1000proektov.by +375 29 187-69-96

Проект деревянного дома 3-5

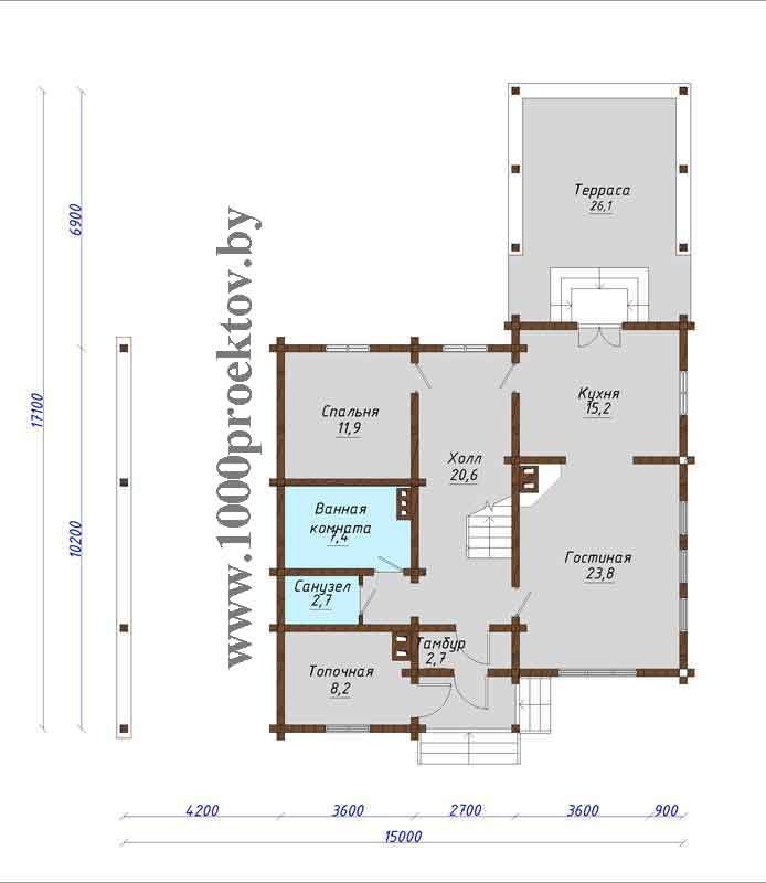
Характеристики проекта:

Площадь(м²): 163
Материал стен: дерево
Количество жилых этажей: 1+мансарда
Эскизный проект
550 руб.
Строительный проект
1600 руб.

Получить консультацию