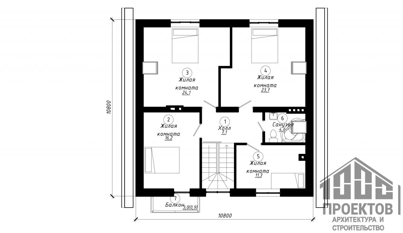
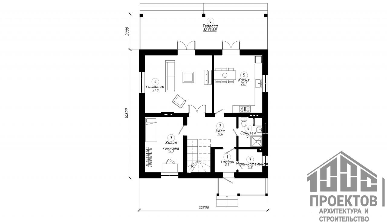
Проект дома из газосиликатных блоков площадью 174,7м2. В доме один этаж с мансардой, где находятся гостиная, кухня, 5 жилых комнаты, 2 санузла, балкон и уютная терраса.
Фундамент – свайно-ростверковый
Материал стен – блоки газосиликатные
Перекрытия – монолитное
Покрытие кровли – металлочерепица
Фундамент
Свайно-ростверковый с черновой стяжкой
Терраса-черновая стяжка
Крыльца
Стены
Газосиликатные блоки Наружные стены 400 мм + утепление фасада мин.ватой - 50мм Несущие внутренние стены - 300 мм Перегородки - 120 мм