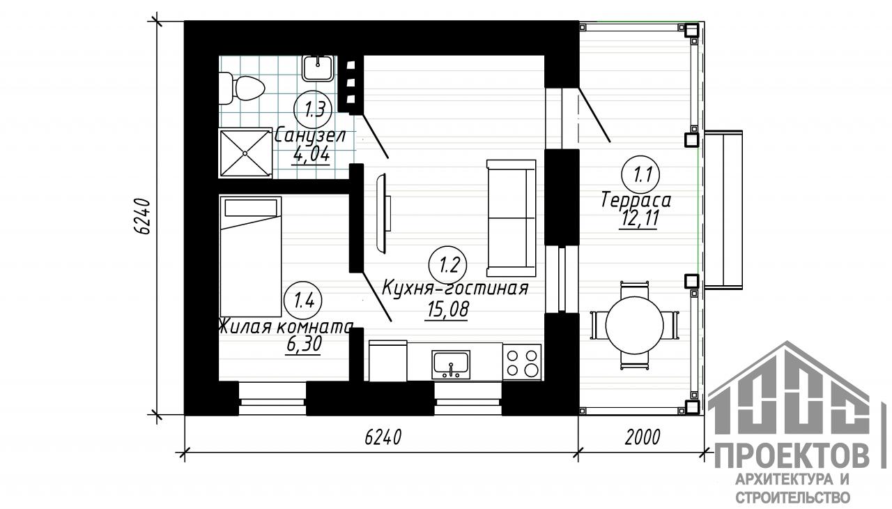
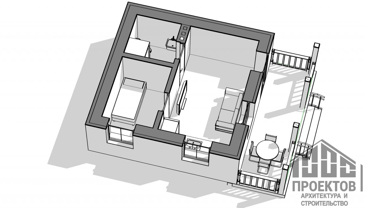
Фундамент – ленточный монолитный либо свайно-ростверковый ж/б
Материал стен - блоки газосиликатные или керамзитобетонные
Перекрытие - по деревянным балкам
Кровля – металлическая или гибкая черепица по деревянным стропилам
Архитектурные(эскизными) решения - раздел проектной документации, в котором изложено авторское видение архитектурного объекта. Комплект чертежей Эскизного решения не является основанием для строительства дома. АРХИТЕКТУРНЫЙ ПРОЕКТ необходим для получения разрешения на строительные работы в местных органах архитектуры, а также в дальнейшем для разработки РАБОЧЕГО И ИНЖЕНЕРНОГО ПРОЕКТОВ, по чертежам которых непосредственно и осуществляется строительство дома!