info@1000proektov.by +375 29 187-69-96

Проект дома из блоков 1121

Характеристики проекта:

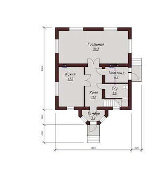
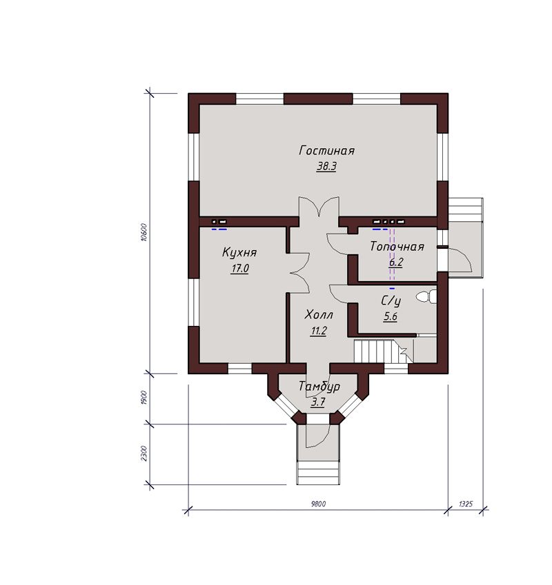
Площадь(м²): 169.9
Материал стен: блоки
Количество жилых этажей: 2
Эскизный проект
550 руб.
Строительный проект
1600 руб.

Получить консультацию