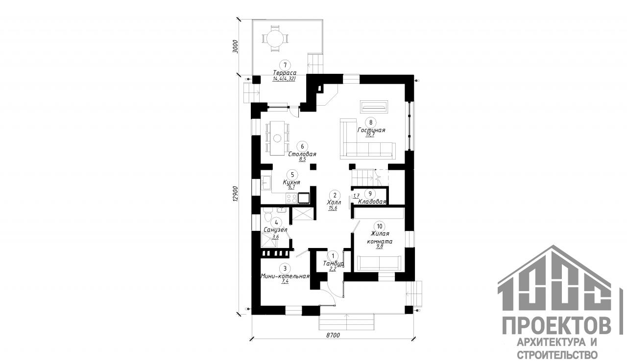
Проект двухэтажного дома из газосиликатных блоков площадью 143.37м2. На 1м этаже в проект включены большая гостиная, совмещенная с кухней и столовой, жилая комната, просторный холл, санузел, мини-котельная, кладовая и комфортабельная терраса. На 2м этаже будут 2 жилые комнаты с балконом и гардеробной, санузел и постирочная.
Фундамент – свайно-ростверковый
Материал стен – блоки газосиликатные
Перекрытия – монолитное
Покрытие кровли – металлочерепица
Фундамент
Свайно-ростверковый с черновой стяжкой
Терраса-черновая стяжка
Крыльца
Стены
Газосиликатные блоки Наружные стены 400 мм + утепление фасада мин.ватой - 50мм Несущие внутренние стены - 300 мм Перегородки - 120 мм