info@1000proektov.by +375 29 187-69-96

Проект дома из блоков 1247

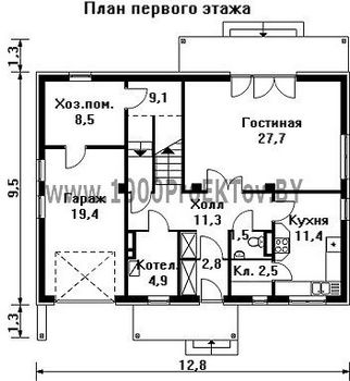
Характеристики проекта:

Площадь(м²): 195.8
Материал стен: блоки
Количество жилых этажей: 1+мансарда
Эскизный проект
550 руб.
Строительный проект
1600 руб.

Получить консультацию