info@1000proektov.by +375 29 187-69-96

Проект дома из блоков 1305

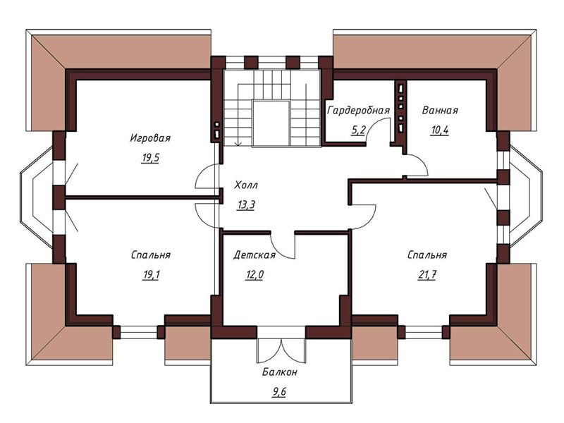
Характеристики проекта:

Площадь(м²): 297.5
Материал стен: блоки
Количество жилых этажей: 1+мансарда
Эскизный проект
650 руб.
Строительный проект
2100 руб.

Получить консультацию