info@1000proektov.by +375 29 187-69-96

Проект дома из блоков 1466

Характеристики проекта:

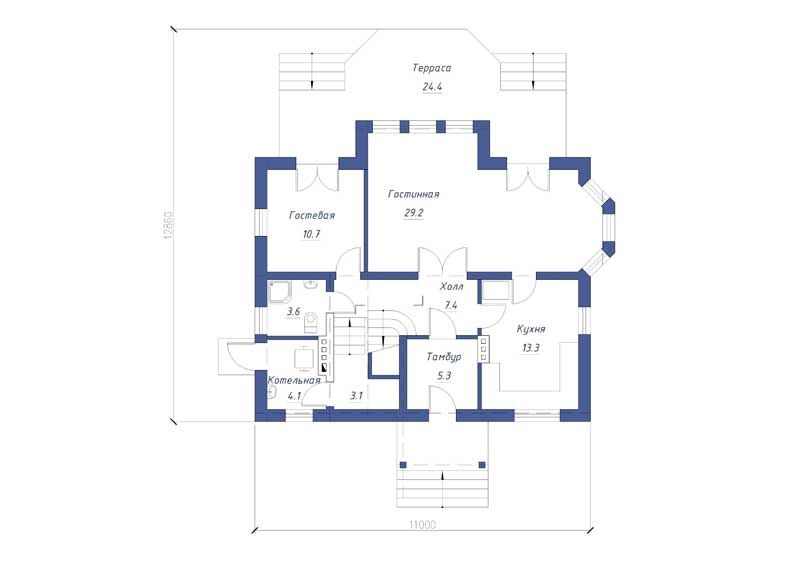
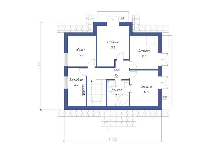
Площадь(м²): 167.1
Материал стен: блоки
Количество жилых этажей: 1+мансарда
Эскизный проект
550 руб.
Строительный проект
1600 руб.

Получить консультацию