info@1000proektov.by +375 29 187-69-96

Проект дома из блоков 1541

Характеристики проекта:

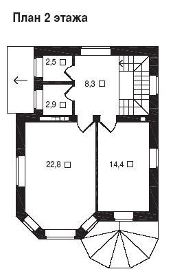
Площадь(м²): 106.6
Материал стен: блоки
Количество жилых этажей: 2
Эскизный проект
500 руб.
Строительный проект
1200 руб.

Получить консультацию