info@1000proektov.by +375 29 187-69-96

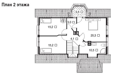
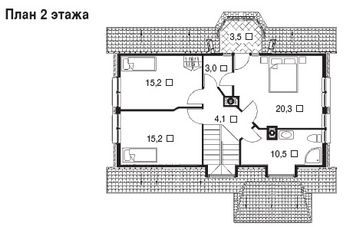
Проект дома из блоков 1547

Характеристики проекта:

Площадь(м²): 151
Материал стен: блоки
Количество жилых этажей: 1+мансарда
Эскизный проект
550 руб.
Строительный проект
1600 руб.

Получить консультацию