info@1000proektov.by +375 29 187-69-96

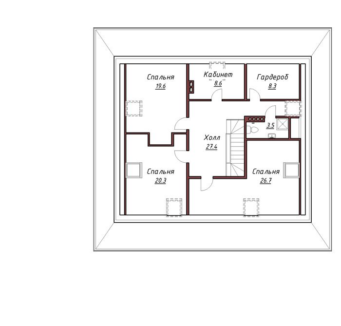
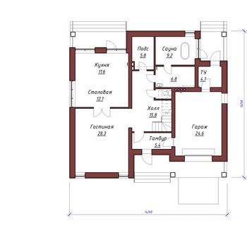
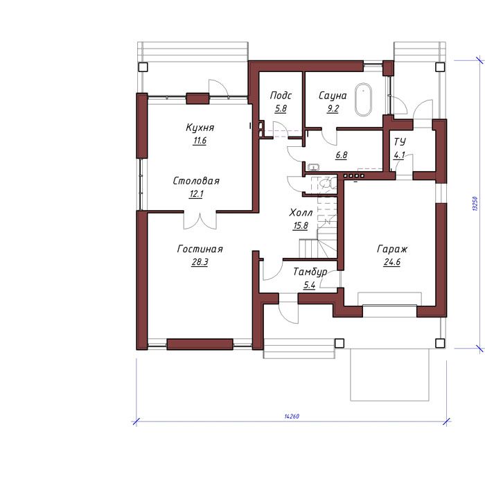
Проект каменного дома 1566

Характеристики проекта:

Площадь(м²): 223.5
Эскизный проект
600 руб.
Строительный проект
2100 руб.

Получить консультацию