info@1000proektov.by +375 29 187-69-96

Проект каменного дома 1620

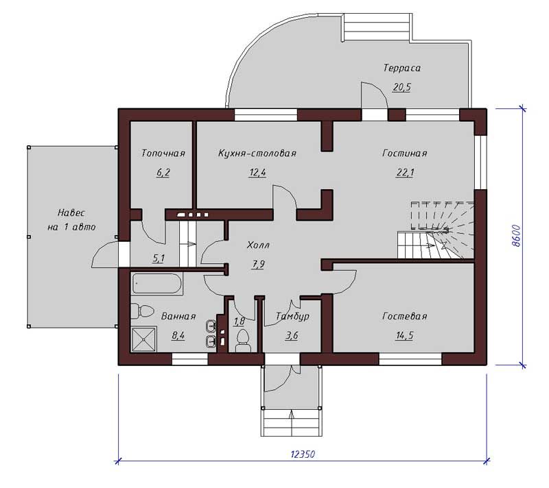
Характеристики проекта:

Площадь(м²): 171.7
Материал стен:
Количество жилых этажей:
Эскизный проект
550 руб.
Строительный проект
1600 руб.

Получить консультацию