info@1000proektov.by +375 29 187-69-96

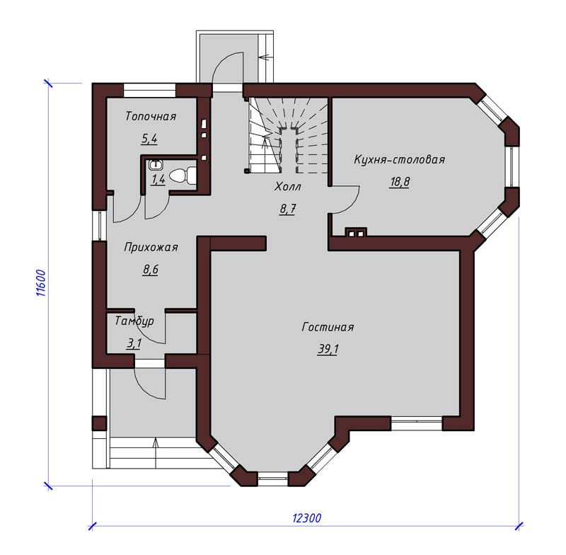
Проект каменного дома 1621

Характеристики проекта:

Площадь(м²): 178.3
Количество жилых этажей: 2
Эскизный проект
550 руб.
Строительный проект
1600 руб.

Получить консультацию