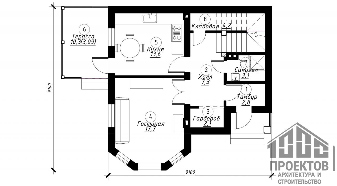
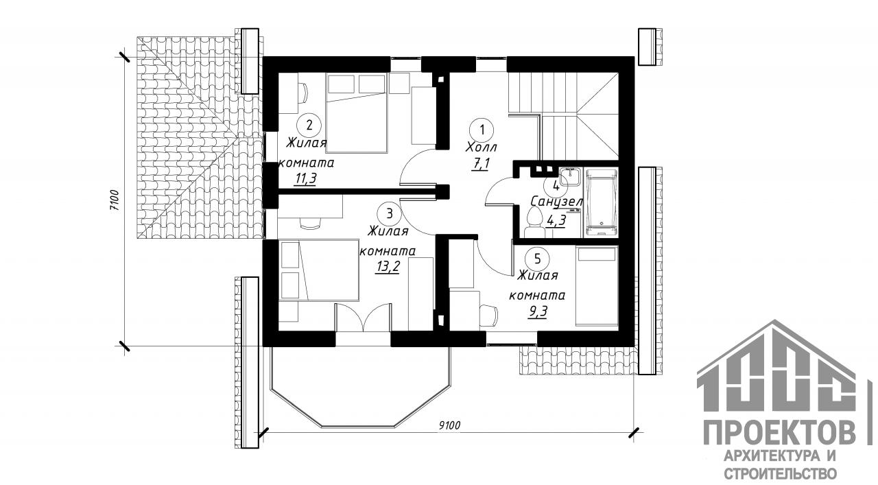
Проект двухэтажного дома из газосиликатных блоков площадью 99,09м2. На 1м этаже в проект включены большая гостиная, кухня, кладовая, холл, санузел, гардероб и комфортабельная терраса. На 2м этаже будут 3 жилые комнаты и санузел.
Фундамент – свайно-ростверковый
Материал стен – блоки газосиликатные
Перекрытия – монолитное
Покрытие кровли – металлочерепица
Фундамент
Свайно-ростверковый с черновой стяжкой
Терраса-черновая стяжка
Крыльца
Стены
Газосиликатные блоки Наружные стены 400 мм + утепление фасада мин.ватой - 50мм Несущие внутренние стены - 300 мм Перегородки - 120 мм