info@1000proektov.by +375 29 187-69-96

Проект дома из блоков м17

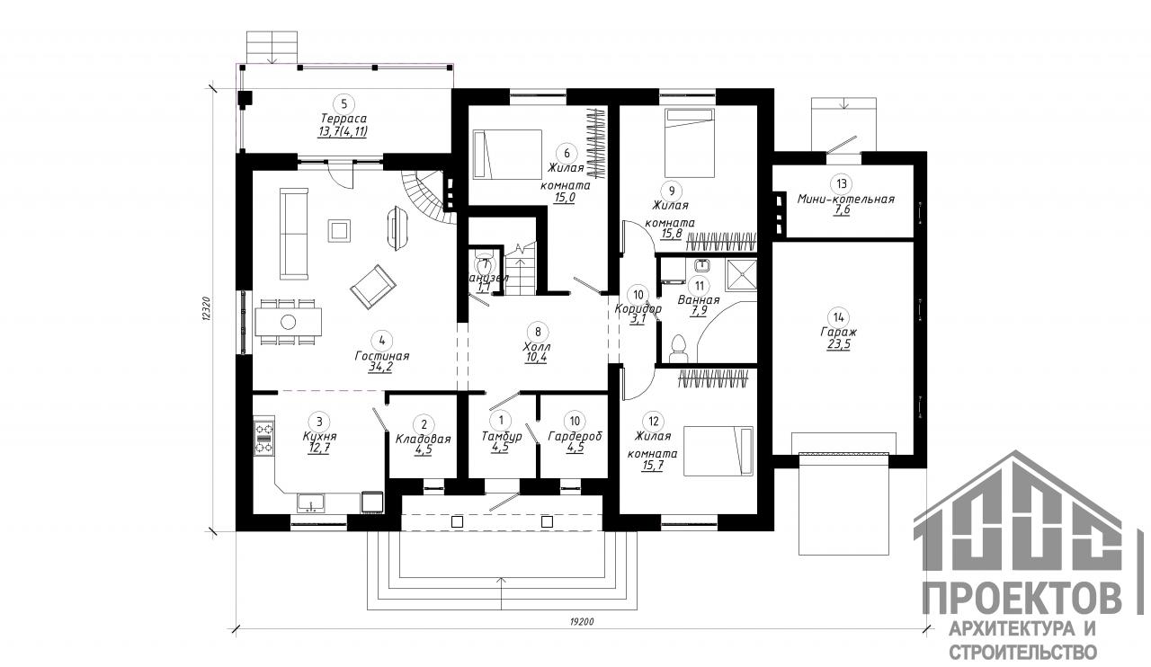
Характеристики проекта:

Площадь(м²): 160.11
Материал стен: блоки
Количество жилых этажей: 1
Эскизный проект
550 руб.
Строительство
от 240 200 руб.

Получить консультацию