Материал стен – «каркасного типа» (толщина утеплителя 200мм), с обшивкой «имитация бруса»
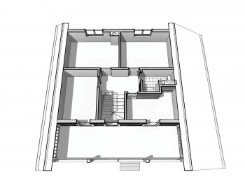
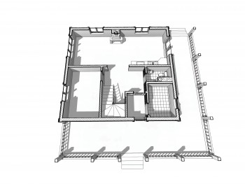
Перекрытия – по деревянным балкам
Покрытие кровли – гибкая битумная черепица
Высота этажа – 2,5м. Подъем мансарды - 1,5м
Архитектурные(эскизными) решения - раздел проектной документации, в котором изложено авторское видение архитектурного объекта. Комплект чертежей Эскизного решения не является основанием для строительства дома. АРХИТЕКТУРНЫЙ ПРОЕКТ необходим для получения разрешения на строительные работы в местных органах архитектуры, а также в дальнейшем для разработки РАБОЧЕГО И ИНЖЕНЕРНОГО ПРОЕКТОВ, по чертежам которых непосредственно и осуществляется строительство дома!