info@1000proektov.by +375 29 187-69-96

Проект каркасного дома 2-27

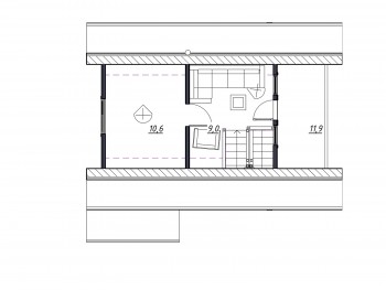
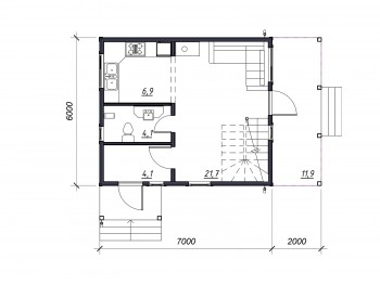
Характеристики проекта:

Площадь(м²): 69.57
Материал стен: каркас
Количество жилых этажей: 1+мансарда
Эскизный проект
400 руб.
Строительный проект
1200 руб.

Получить консультацию