info@1000proektov.by +375 29 187-69-96

Проект каркасного дома 2-50-5

Характеристики проекта:

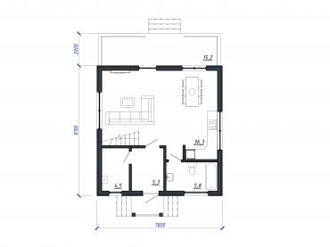
Площадь(м²): 103.84
Материал стен: каркас
Количество жилых этажей: 1+мансарда
Эскизный проект
500 руб.
Строительный проект
1200 руб.

Получить консультацию